Venta en bloque de 4 PH en Pichincha – Renta inmediata ; gran potencial

Guemes 2670 - Alberto Olmedo, Rosario, Santa Fe

  • PH
  • 7 Dormitorios
  • 15 Ambientes
  • 5 baños
  • 585.00mt²
  • USD 339.000 En Venta

Descripción

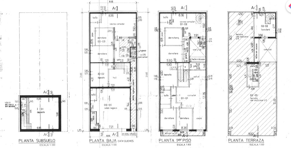
Inversión con retorno inmediato en el corazón de Pichincha Ubicado sobre calle Güemes 2670, a solo 4 cuadras y media de Bv. Oroño, este PH de 4 unidades independientes combina renta asegurada, excelente ubicación y un valor por m² altamente competitivo: U$S 339.000 por 370 m² cubiertos totales → solo U$S 915 /m², una oportunidad única en una de las zonas con mayor proyección de Rosario. Ideal para inversores que buscan una propiedad consolidada, con contratos vigentes, documentación lista para transferir y potencial de valorización a futuro. Distribución del conjunto 🔹 Unidad 01 – Local comercial (al frente): 93,71 m² cubiertos (53,64 m² en planta baja + 40,07 m² en subsuelo). Actualmente alquilado hasta agosto 2026. 🔹 Unidad 02 – Vivienda en 3 niveles con terraza exclusiva: 140 m² cubiertos + 110 m² de terraza. En planta baja: hall, baño y oficina/depósito. En primer piso: living comedor, cocina, baño completo, dos dormitorios con balcón corrido al frente, estudio o comodín. En segundo piso: galería y terraza de uso exclusivo. Contrato vigente hasta diciembre 2025. 🔹 Unidad 03 – Vivienda en planta baja con patio: 57 m² cubiertos + 12 m² de patio. Cocina comedor, dos dormitorios y baño. Alquilada hasta diciembre 2025. 🔹 Unidad 04 – Vivienda en primer piso con terraza propia: 78 m² cubiertos + 41 m² de terraza exclusiva. Cocina comedor, dos dormitorios, baño, lavadero y acceso a terraza. Contrato vigente hasta diciembre 2025. Renta inmediata y proyección de valor Las cuatro unidades se encuentran actualmente alquiladas, garantizando un flujo de ingresos desde el primer día. El comprador continuará percibiendo los alquileres vigentes, lo que convierte a esta propiedad en una inversión sólida, segura y con retorno inmediato. Además, su ubicación estratégica —a metros de Oroño y rodeada de bares, universidades y proyectos nuevos— asegura una constante demanda y revalorización a mediano plazo. 📍 Ubicación destacada En pleno Barrio Pichincha, sobre Güemes entre Alvear y Rodríguez, entorno consolidado, alta demanda de alquileres y excelente conectividad con el centro, Bv. Oroño y el río. Oportunidad para inversores Un PH único en su tipo, con 4 unidades independientes, todas rentadas, buen estado general y una relación m²/precio difícil de igualar en Pichincha. Ideal para quien busca un activo patrimonial rentable y de bajo riesgo, o para quien proyecte una refuncionalización futura con alta plusvalía. 👉 Consultanos para conocer el detalle de rentas, planos y rentabilidad estimada. Linkasa Servicios Inmobiliarios – Invertí donde Rosario crece.

Código KP451941
Categoría PH
Estado Activa
Venta USD 339.000
Dirección Guemes 2670
Barrio Alberto Olmedo
Ciudad Rosario
Provincia Santa Fe

Contáctanos

Linkasa Servicios Inmobiliarios